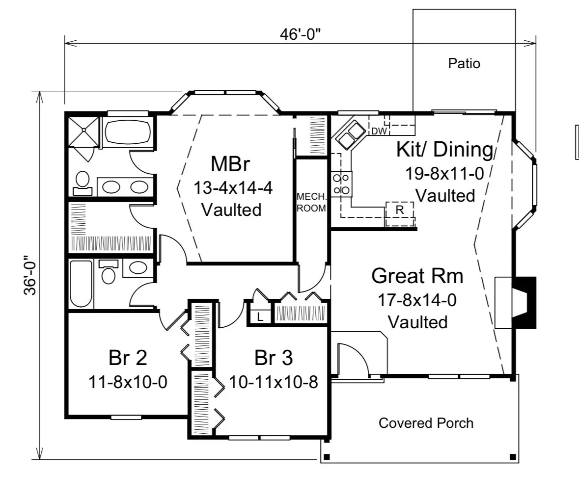
LaFleur 1308 Plan:

Charming Cottage

  • Features include: 3 bedrooms · 2 baths · 1308 sqft

  • Exterior highlights: • Covered front porch
    • Hardie Siding
    • Bay windows and chimney

Interior highlights: • Walk in tiled custom shower
• Vaulted and/ or tray ceilings • Luxury vinyl plank flooring

At Southern Artisan Builders Louisiana, we take pride in crafting homes with heart and individuality, delivering builds that stand out with extraordinary quality and distinction.

Build This Plan With Us!
Previous
Previous

Lanier Plan

Next
Next

Sunset Plan