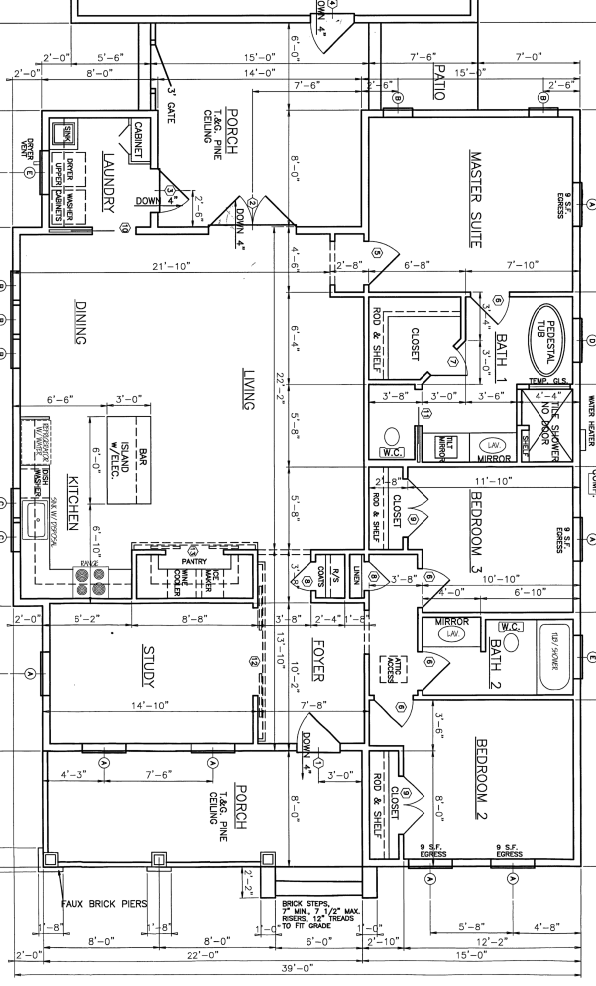
Belle 1722 Plan:

Charming Cottage

  • Features include: 3 bedrooms · 2 baths · 1722 sqft

  • Exterior highlights: • Back Porch connected to garage
    • Hardie Siding
    • T&G Porch ceilings

Interior highlights: • Custom master suite
• 10’ Ceilings • Island with bar

The Belle house plan is named in honor of someone special, reflecting warmth, grace, and timeless character. Designed with inviting spaces and balanced proportions, the Belle is a home built to feel personal, welcoming, and enduring.

Previous
Previous

Atchafalaya 3546 Plan

Next
Next

Danielle 1618 Plan