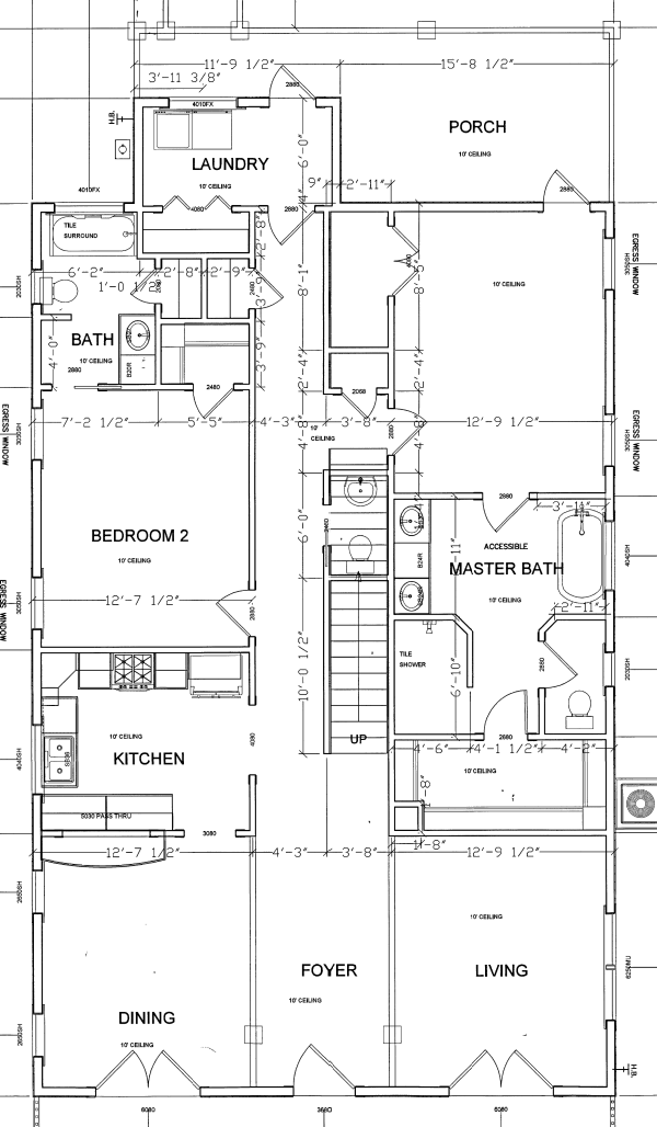
Fontaine 1782 Plan:

Acadian Cottage

  • Features include: 2 bedrooms · 2 baths · Office/ Bonus Room · 1782 sqft

  • Exterior highlights: • Covered front porch
    • French Doors
    • Dormer

Interior highlights: • Open living area
• 10’ ceilings • Optional 2nd story with bonus bedroom and bathroom (758sqft)

The Fontaine house plan takes its name from the French word fontaine, meaning fountain, which is a traditional gathering place. This design centers the home around shared living spaces that support everyday connection, family life, and time together. The Fontaine reflects the belief that a well-crafted home is important because it is your primary gathering place!

Previous
Previous

Lanier 2140 Plan

Next
Next

Chicot 1805 Plan