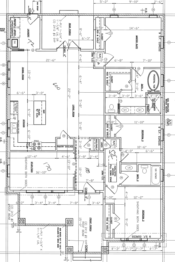
Chicot Plan 1805:

Charming Cottage

  • Features include: 3 bedrooms · 2 baths · Study/Den· 1805 sqft

  • Exterior highlights: • T&G Porch ceilings
    • Stained wood posts
    • Double gable ends and exposed rafter tails

Interior highlights: • Walk in tiled custom shower and pedestal tub
• 10’ Ceilings • Open Living Area

The Chicot house plan is named after Chicot State Park, reflecting Southern Artisan Builders’ commitment to nature and responsible building. Our mission is to preserve existing trees on every lot whenever possible—or to plant a tree that will grow tall with the home. In support of that philosophy, we proudly advocate for State and National Parks.

Previous
Previous

Fontaine 1782 Plan

Next
Next

Olympe 3400 Plan